Działka budowlana Dębogard gm. Dygowo
Dębogard gm. Dygowo Pokaż na mapie ›
Odświeżone: Czwartek, 04 Grudzień, 2025 11:23
395 000 zł
76 zł/m2
Szczegóły ogłoszenia
- Kategoria: Działki i grunty / Sprzedaż
- Pow. działki:5212 m2
- Rodzaj działki:Budowlana
- Sprzedaż:Pośrednik
- Cena: 395 000 zł / 76 zł/m2
Opis oferty
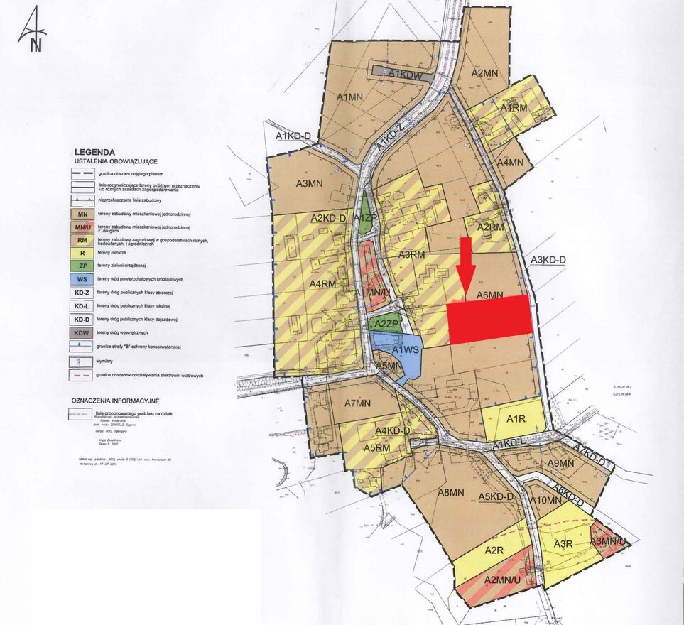
DĘBOGARD gmina Dygowo na sprzedaż działka inwestycyjna o pow. 5.212 m2Istnieje możliwość podziału działki na 4 lub 5 mniejszych.
W planie zagospodarowania przestrzennego gminy teren przeznaczony jest:
- pod zabudowę jednorodzinną
Miejscowość jest bardzo dobrze skomunikowana z Kołobrzegiem odległość ok.13 km.
Dobry dojazd do działki drogą gruntową.
Media -
- woda, prąd - przy granicy działki ok 100 m
- kanalizacja w głównej drodze prowadzącej przez środek wsi.
Przedstawione informacje nie stanowią oferty w rozumieniu przepisów Kodeksu Cywilnego. Dane dotyczące nieruchomości oparte są na informacjach uzyskanych od właściciela nieruchomości i mogą różnic się od stanu faktycznego. Podane ceny i czynsze mogą ulec zmianie. Zalecamy osobiste zapoznanie się ze stanem nieruchomości. Zapraszamy !
Oferta wysłana z programu IMO dla biur nieruchomości
Numer oferty: 23629
Sprawdź zainteresowanie tym ogłoszeniem
Wyświetlenia
Data dodania
Ostatnio widziany
Obserwujących
Wysłane zapytania
Odsłony telefonu
- Wypromuj ogłoszenie
- Zgłoś naruszenie
- Drukuj ulotkę
- Edytuj/usuń ogłoszenie
- Udostępnij ogłoszenie
- Dodaj na Facebook

























